Čitatelia najväčšieho architektonického portálu Archdaily vybrali „the best“ dom za rok 2020 - ide o fantastické dielo čínskych architektov na rekonštrukciu chátrajúceho mestského domu v jednej z nízkopodlažných štvrtí čínskeho hlavného mesta.
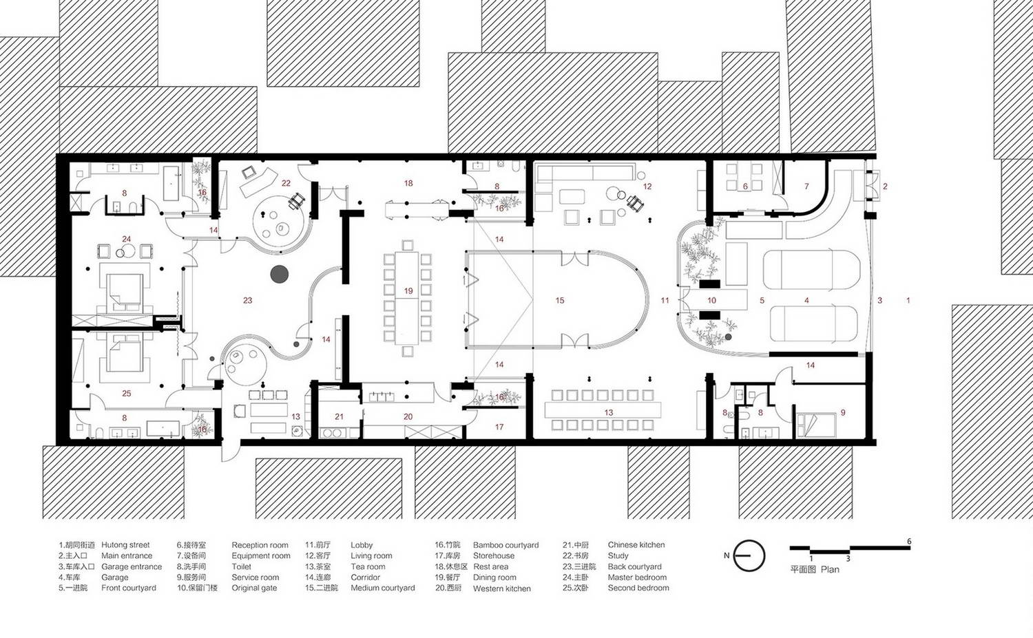
Ide o Siheyuan (typológia tradičného čínskeho sídla) s tromi nádvoriami, s celkovou dĺžkou 15 a šírkou a 42 metrov. Je pomenovaný ako „Qishe“ („Qi“ a „She“ znamená v čínštine „sedem“ a „dom“, pretože pôvodne pozostávalo zo 7 budov so šikmou strechou.
Pred renováciou bol Xiheyuan starý a chátral. Hlavné drevené trámy a niektoré klenuté dvere v republikánskom štýle boli pomerne dobre zachované, zatiaľ čo väčšina striech, stien, dverí a okien bola vážne poškodená alebo sa rozpadávala. Na nádvoriach bolo pred mnohými rokmi postavených veľa dočasných štruktúr.
Pri spustení projektu si dizajnérska firma ARCHSTUDIO stanovila dva ciele: aktualizovať starý a postaviť nový. Na jednej strane dizajnéri dali do poriadku domy, boli opravené všetky povrchy budov a konštrukcie boli spevnené, aby reprodukovali vzhľad tradičnej budovy v regióne. Na druhej strane zaviedli nové obytné priestory, ako sú kúpeľňa, kuchyňa a garáž a nové verandy. Staré a nové sú spojené do nového celku, aby lepšie zodpovedali budúcim funkčným požiadavkám bývania v komplexe.
ARCHSTUDIO postavilo verandu - základňu tradičnej čínskej architektúry - do starého Siheyuanu, aby prepojilo sedem samostatných domov so šikmou strechou.
Veranda funguje ako spájajúca trasa, mení priestorový vzor a poskytuje zábavnú prechádzku i fantastické výhľady. Predný dvor sa používa hlavne ako garáž. ARCHSTUDIO zachovalo šikmé strechy, odstránilo predné a zadné steny a posunulo predné dvere na stranu, aby poskytlo viac parkovacieho miesta. Tím architektov obnovil a zachoval mnoho cenných historických prvkov, ako sú brány a vyrezávané oblúky dverí alebo dokonca suché drevo.
Okrem toho bol demontovaný múr medzi predným a stredným dvorom a nahradený priehľadnou verandou. Veranda má zakrivenú rovinu a je rozmanitá podľa krajinnej a priestorovej funkcie a úzko sa spája so zakrivenými okrajmi šikmých striech a vytvára niekoľko klenutých priehľadných priestorov, ktoré kombinujú domy, krajinu a oblohu do jednej maľby. Na nádvorí sa časť strechy verandy sklonila nadol a vytvorila zakrivenú stenu, za ktorou boli niektoré funkčné oblasti, vrátane toalety, technickej miestnosti, miestnosti s vybavením atď.
Stredné nádvorie je verejným priestorom. Predtým ho ohraničovali tri domy, jeden na severe a dva po stranách. Štúdio na základe pôvodného usporiadania umiestnilo do tejto oblasti obývaciu izbu, čajovňu, jedáleň, kuchyňu atď. Architekti prijali symetrický priestorový vzor, ktorý zdedil zmysel pre formálnosť tradičných budov na nádvorí. Okrem toho vymenili staré schody vedúce k domom. Svahy a priehľadná veranda spoločne vylepšujú spojenie medzi vnútornými priestormi a otvoreným nádvorím. Jedáleň má výklopné dvere, ktoré dokážu úplne otvoriť interiér do vonkajšieho priestoru a rozšíriť vnútorné aktivity na dvore. V strede zadnej steny jedálne sú klenuté dvere.
Aj na zadnom dvore je obytná plocha a skladá sa predovšetkým z dvoch spální, čajovne a štúdia. Jeho pôvodné usporiadanie je rovnaké ako na strednom nádvorí. Veranda v tejto oblasti má zvlnenú rovinu, ktorá interaguje s tromi starými stromami, ktoré už na nádvorí existovali, a súčasne vytvára niekoľko malých klenutých salónikov.
Spálne sú umiestnené v zadnej časti budovy a majú symetrické priestorové usporiadanie vychádzajúce z hrebeňa strechy. Kúpeľňa v každej spálni susedí s malou terasou, ktorá poskytuje dobré osvetlenie a vetranie.
Materiálna schéma projektu úspešne kombinuje staré a nové. Architekti si ponechali textúry tradičných materiálov a pridali niekoľko nových, aby si zachovali stopy času a predstavili kontrast a fúziu nového a starého. Pôvodný rám z borovicového dreva zostal zachovaný a jeho poškodené komponenty boli nahradené rovnakým materiálom. Nová veranda, dvere, okná a niektoré zariadenia používajú laminované bambusové panely (nový materiál, ktorý vyzerá ako drevo, ale cíti sa ako oceľ), ktorý imituje starú borovicu.
Novo postavená veranda má rámovanú štruktúru s rebrovanými trámami a stropnými panelmi, ktoré poskytujú maximálnu priehľadnosť a ľahkosť a zároveň lepšie zapadajú do starej konštrukcie.
Tradičné šikmé strechy nepoužívali moderné nepremokavé materiály a mali zlú tepelnú izoláciu. Z tohto dôvodu návrhári optimalizovali strešný systém pri zachovaní pôvodných sivých škridlových striech. Pokiaľ ide o zakrivenú strechu novopostavenej verandy, dizajnéri použili povrchovú úpravu živicovou maltou, ktorá je hladká a kontrastuje so susednými štruktúrovanými škridlovými strechami.
Steny starej budovy boli obnovené opätovným použitím sivých tehál zo zbúraných dočasných architektonických blokov na nádvoriach. Podlaha v otvorených priestoroch je kvôli vizuálnej celistvosti vydláždená rovnakým typom tehál. Niektoré nové steny sú vyrobené zo sklenených tehál, ktoré sú rovnako veľké ako staré šedé tehly. Počas výstavby boli nečakane objavené kusy kameňa, črepy a mlynské kamene, ktoré sa neskôr znovu použili ako dekorácia. Trámy z odpadového dreva z renovácie architektúry sa použili na výrobu stoličiek, ktoré dávajú starým materiálom nový život.
Názov: Dom s nádvorím Qishe (Qishe Courtyard)
Umiestnenie: Peking, Čína
Architektúra: ARCHSTUDIO
Stavba: 2020
Celková plocha: 500 m2
Foto: Qingshan Wu , Ning Wang
Ivan Nôta















