Parametre kúpeľní v bytoch nemajú vždy dostatočnú plochu pre štandardné umiestnenie všetkých kľúčových sanitárnych zariadení. Riešenie tohto problému spočíva v jasnom premyslení umiestnenia a výbere kompaktných modelov funkčných kľúčových predmetov. Jedným z nich je toaleta s rohovou nádržkou - výhodný dizajn pre originálny vzhľad priľahlej miestnosti.
Zásadným rozdielom medzi bežnou toaletou a rohovou toaletou je nezvyčajný tvar splachovacej nádrže, ktorý je pre naše oči neobvyklý. Pri zachovaní celkového objemu má odtoková miska nádrže rohového modelu trojuholníkový tvar. Tento model má veľa výhod.
Rohový dizajn umožňuje nielen kompaktne umiestniť všetko potrebné vybavenie do malej miestnosti, ale tiež pomáha vytvoriť jedinečný dizajn priestoru. Vodovodné armatúry umiestnené v rohoch miestnosti umožňujú „zaobliť“ miestnosť a uvoľniť jej stredovú časť. Tým sa uvoľní cenný dodatočný priestor.
Ak má byt samostatnú kúpeľňu, potom použitie modelu rohovej toalety umožní umiestniť bidet alebo dokonca rohové umývadlo či pisoár priamo tam, keď to bude potrebné.
Rohový model niekedy pôsobí dojmom dosť krehkej konštrukcie. Odborníci však tvrdia, že inštalácia tohto tvaru môže vydržať až pol tony hmotnosti. Ďalšou výhodou modelu je, že má funkciu nastavenia výšky v rozmedzí štyroch centimetrov.
Špeciálne misy pre rohové WC sú veľmi žiadané pre ich ekonomickú spotrebu vody a zadržiavanie nepríjemných pachov.
Toaleta s rohovou nádržkou nemá prakticky žiadne nevýhody. Respektíve je plnohodnotným konkurentom bežnej wc súpravy.
Čo treba zvážiť pri výbere
Aby ste si vybrali spoľahlivé a nie príliš drahé rohové WC s nádržkou, musíte vedieť, na aké parametre by ste mali dbať. So správnymi vedomosťami kúpite niečo, čo vám neskôr nespôsobí pocity sklamania a ľútosti.
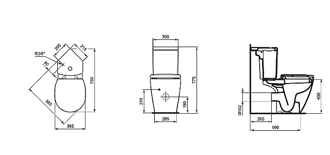
Budúce umiestnenie toalety musí byť určené vopred. Pri výbere modelu musíte mať dobrú predstavu o tom, ako bude umiestnený. Samotná toaleta môže byť umiestnená takmer rovnobežne so stenou, ale nádrž bude musieť byť posunutá mierne nabok. Záchod môžete umiestniť na osi rohu kúpeľne. V súlade s tým je nádrž umiestnená pod uhlom 90 alebo 45 stupňov. Ak je stúpačka umiestnená pozdĺž steny, je dosť ťažké inštalovať rohovú konštrukciu, ale je to možné, ak použijete dodatočné vedenie vo forme zvlnenia alebo hadíc.
Ak chcete úspešne nainštalovať toaletu, musíte sa uistiť, že existujú príležitosti na pripojenie k komunikáciám. Prívod studenej vody do rohového modelu je možné vykonať jedným z dvoch spôsobov: zboku a zospodu . Aby ste sa vyhli potrebe ďalších pripojení, musíte si vybrať toaletu, ktorá zodpovedá vyvedeným komunikáciám.
Pri výbere toalety musíte brať do úvahy materiál, z ktorého bola vyrobená. Moderná paleta materiálov je veľmi rôznorodá. Toalety sa už nevyrábajú len z tradičnej kameniny, ale aj z tvrdeného skla, porcelánu a dokonca aj plastu. Ale napriek tomu je keramický alebo kameninový model stále považovaný za najpraktickejší. Spravidla sa dokonale hodí do interiéru každej modernej kúpeľne.
Dizajn
Ak je miestnosť toalety vyrobená v určitom štýle alebo má určitú farebnú schému, musíte si vybrať model s prihliadnutím na všetky požiadavky na jej vzhľad. Existujú aj ďalšie dizajnové doplnky, ktoré dodávajú dizajnu osobitnú eleganciu: priehľadné veko, intarzie, ozdobné prvky atď.
Toalety môžu mať rôzne veľkosti. Priestor, ktorý bude zaberať vaša budúca toaleta, je potrebné dôkladne zmerať. Minimálna plocha, ktorá bude musieť byť na tento účel pridelená, sú dva metre štvorcové. Zároveň si musíte pamätať, že toaleta by mala vyzerať organicky so všetkými ostatnými inštalatérskymi predmetmi, ktoré budú umiestnené v rovnakej miestnosti ako ona.
Multifunkčnosť
Výrobcovia často vybavujú rohové modely toaliet ďalšími funkciami, ktoré môžu upútať pozornosť potenciálnych kupcov. Moderný dizajn nájdete napríklad s hygienickou sprchou alebo s vekom, v ktorom je namontovaný bidet. Takéto dodatočné funkcie vám umožňujú zvýšiť úroveň pohodlia pri používaní toalety.
Cena rohovej toalety sa líši od cien štandardných modelov s obdĺžnikovými splachovacími nádržkami. V priemere bude toaleta inštalovaná v rohu kúpeľne stáť dvakrát toľko.
Foto: dzen.ru






